Mitten im Zoo-Wohnquartier, das durch zahlreiche Bestandsgebäude geprägt ist, entstanden auf einem ruhigen Hinterhofgrundstück hinter einem Vorderhaus zwei moderne Stadthäuser in Form von Neubau-Doppelhaushälften.
Das zu erwerbende Gebäude wurde nach den Standards eines Effizienzhauses der Klasse E55 realisiert und überzeugt durch eine besonders energieeffiziente Bauweise sowie innovative Gebäudetechnik. Dadurch profitieren Sie von dauerhaft niedrigen Energiekosten und einem nachhaltigen Wohnkomfort.
Die markante Architektur greift mit dem charakteristischen Erker in der Frontfassade und dem klassischen Giebeldach Stilelemente der Villenarchitektur auf und interpretiert sie auf moderne, eigenständige Weise.
Großzügige Fensterflächen, ein offen gestaltetes Treppenhaus im Zentrum und die Dachschrägen im Obergeschoss schaffen lichtdurchflutete Räume mit individuellem Charakter und hoher Aufenthaltsqualität.
Die Raumaufteilung überzeugt durch eine wohlüberlegte Planung und bietet mit rund 231m² Wohnfläche sowie sechs großzügigen Zimmern ein außergewöhnliches Platzangebot. Auf vier bewohnbaren Etagen finden individuelle Vorstellungen und persönliche Entfaltung reichlich Raum.
NACHHALTIGKEIT
+ Effizienzhaus der Klasse E55
+ Zentralheizung über Luft/Wasser/Wärmepumpe
+ Dezentrale Lüftungsanlage mit Wärmerückgewinnung
+ Wärmegedämmte Aluminium Haustür
+ Kunststoff-Fenster mit wärmedämmender 3-fach-Verglasung
+ Wärmegedämmter Dachaufbau nach Energieeinsparverordnung (EnEV 2016)
+ E-Ladestation für PKW
*Das bedeutet für Sie, deutlich weniger Energiekostenrisiko sowie nachhaltiger Wohnraum für die Zukunft.
HOCHWERTIGE AUSSTATTUNG & SICHERHEIT
+ Smart-Home-System-Steuerung
+ Elektrische Rolläden mit Aufschiebe Sicherung
+ Haustür mit Sicherheitsschloss und Fingerprint-Technologie
+ Komfortables Raumgefühl durch Deckenhöhe von ca. 2,63m
+ Innentüren mit einer Höhe von räumigen 2,26m
+ Attraktive Holzparkett- und Fliesenböden
+ Moderne Fußbodenheizung
+ Tageslichtbäder
+ Badausstattung von namhaften Markenhersteller Laufe und Grohe
+ Große Dachterrasse
+ Gartenterrasse
+ Außenstellplatz direkt am Haus inkl. E-Ladestation für ein PKW
+ Neuverlegter Pflasterbelag im Außenbereich
+ Fahrradstellplätze mit Bodenanker in Edelstahl
*Das bedeutet für Sie, Ihren hochwertigen Ansprüchen gerecht zu werden.
GANZHEITLICHES WOHNRAUMKONZEPT
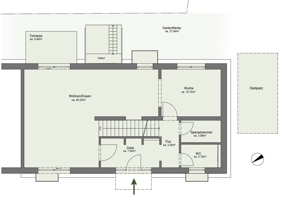
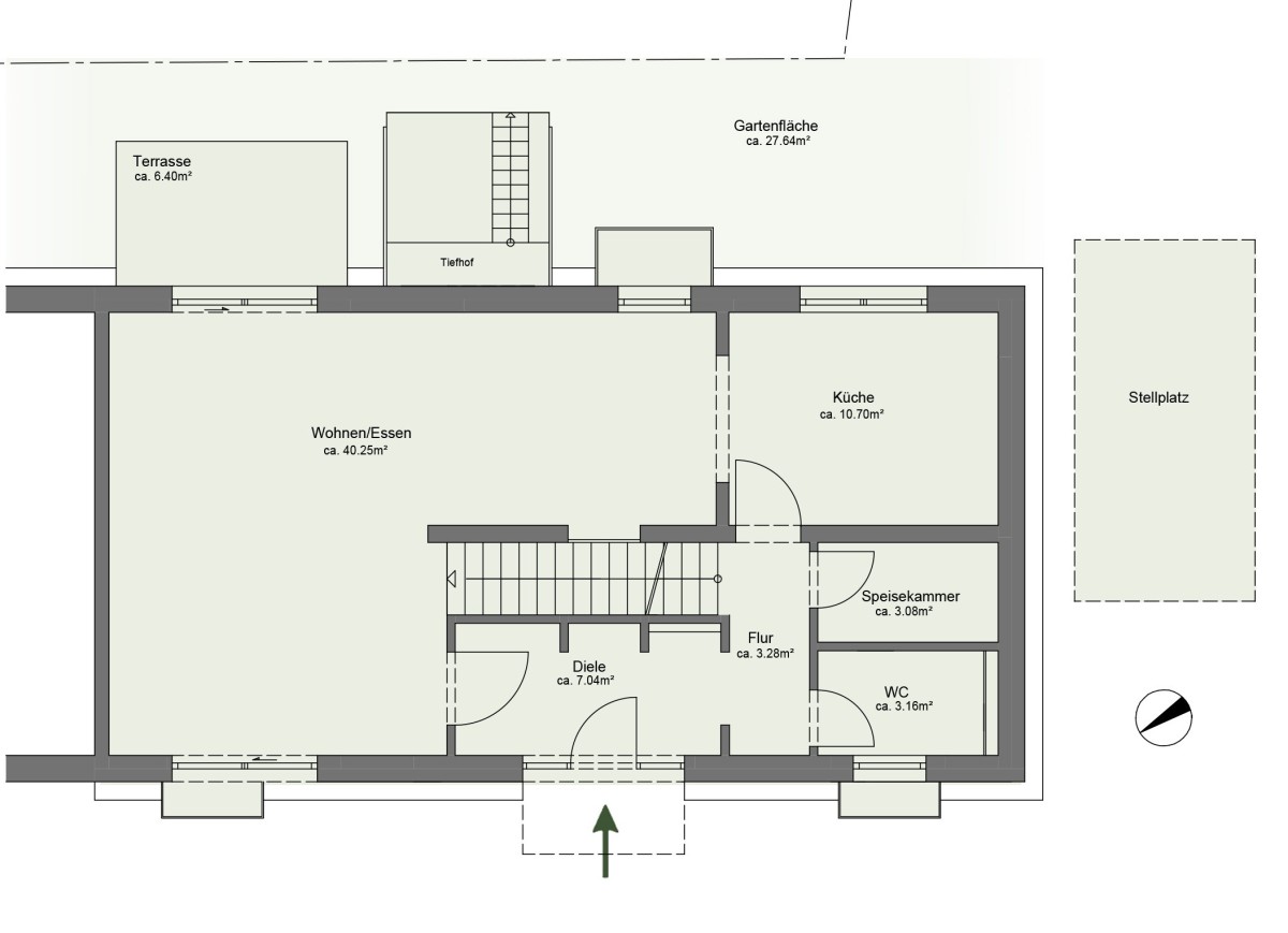
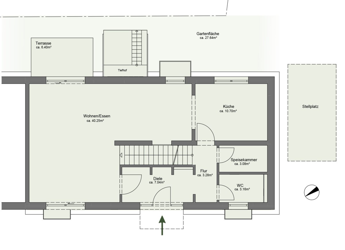
+ Erdgeschoss mit ca. 71m² WFL
Eingangsdiele/Garderobe/Gäste WC/Speisekammer/Küche/Essen/Wohnen/Gartenterrasse
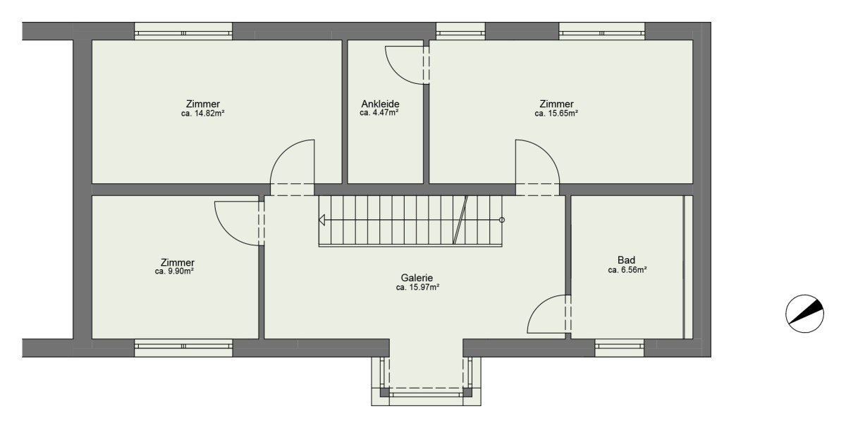
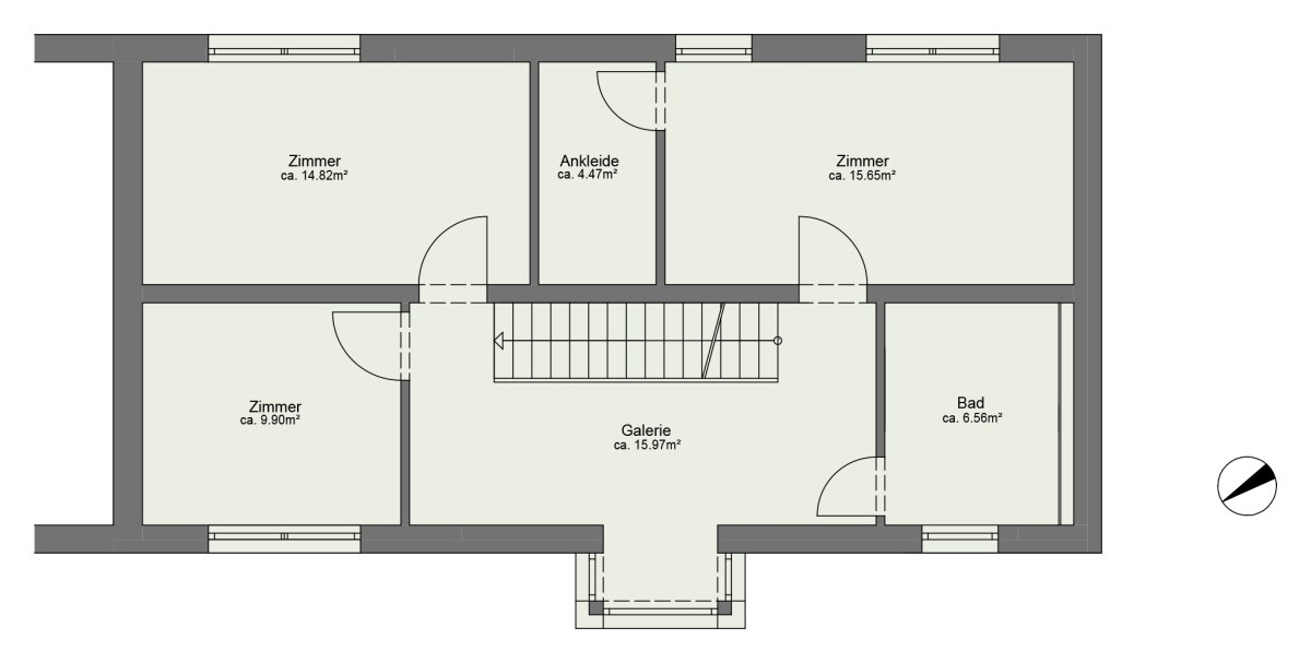
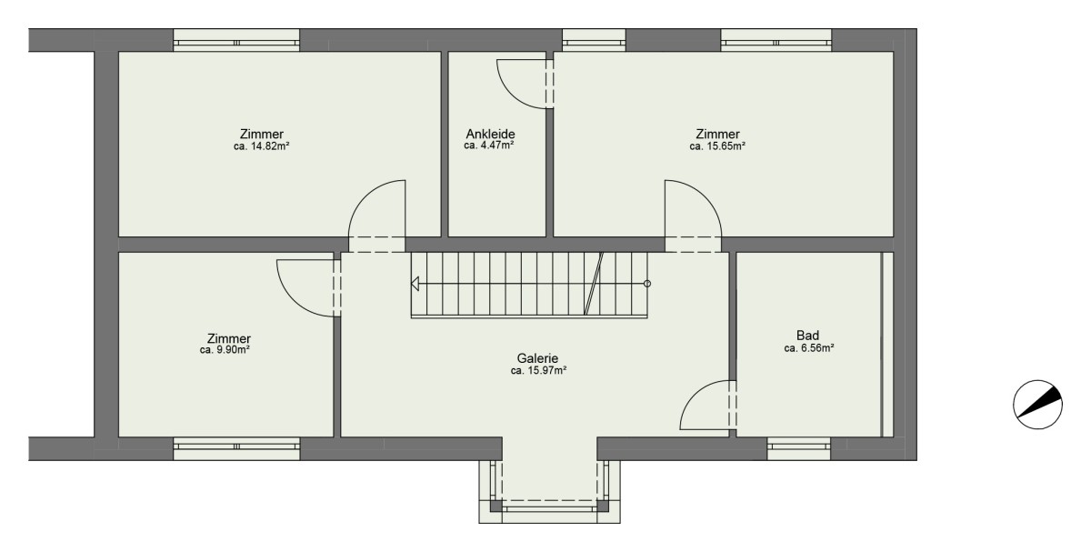
+ Obergeschoss mit ca. 67m² WFL
Galerie/Bad/Schlafen/Ankleide/Kinderzimmer/Home-Office
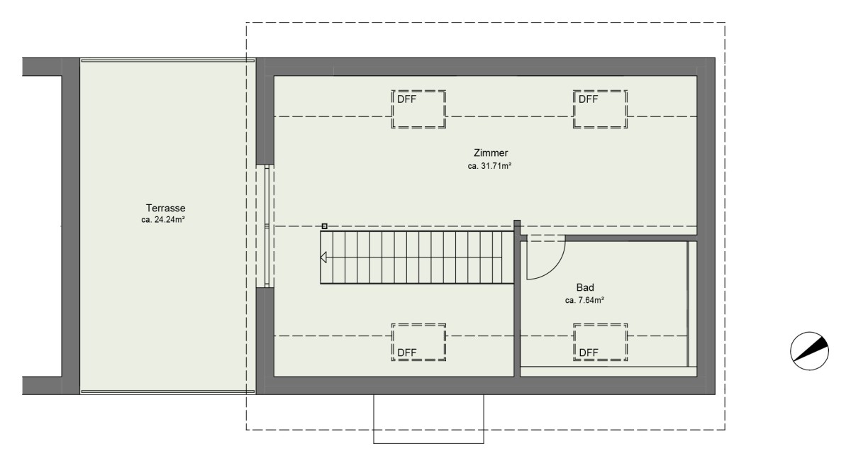
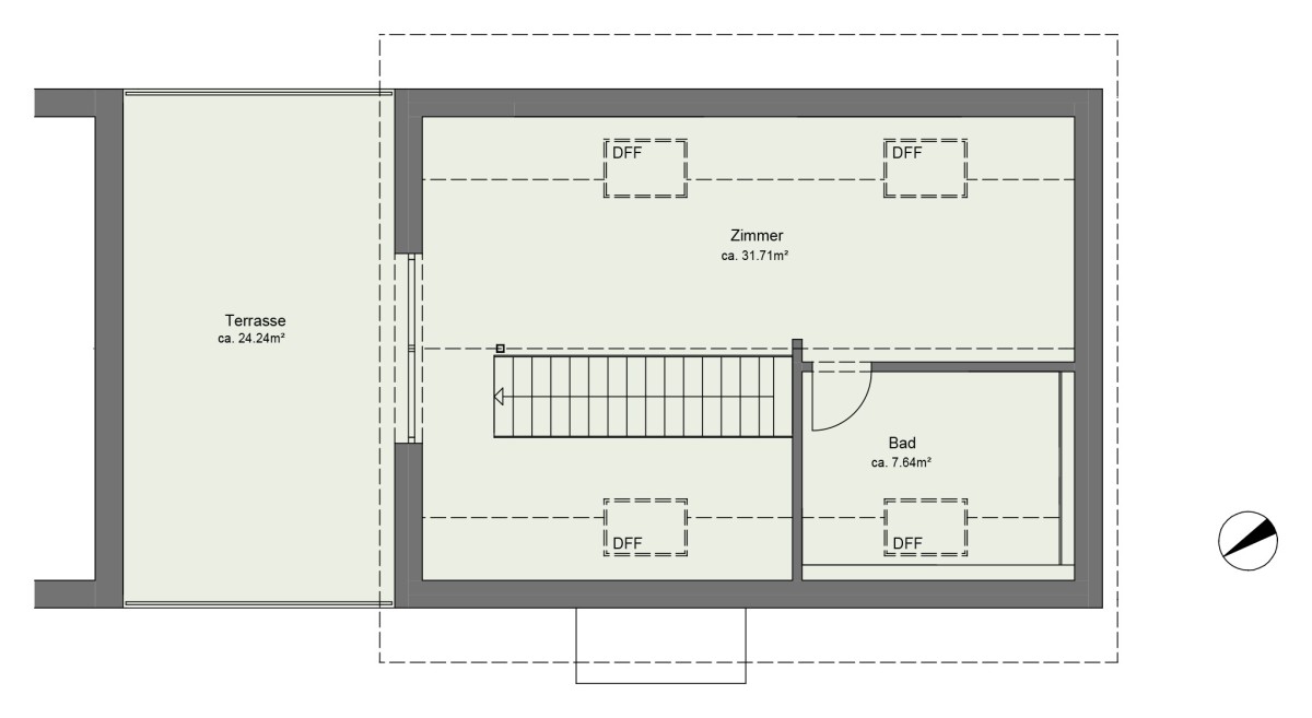
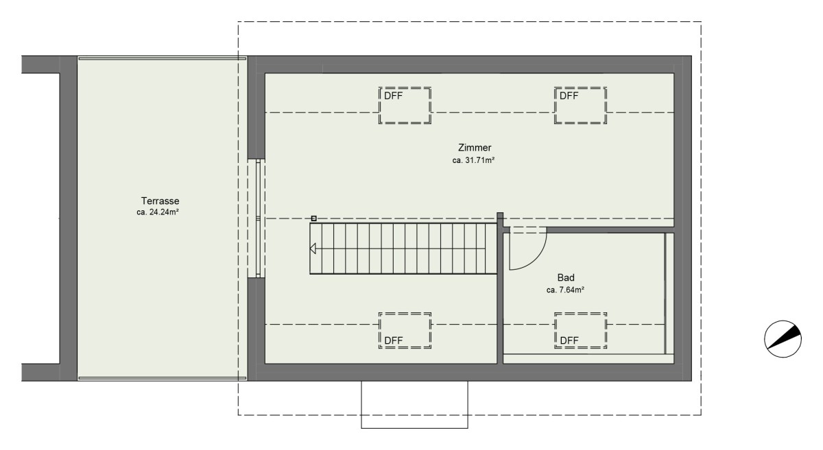
+ Dachgeschoss mit ca. 52m² WFL
Schlafen/Bad/Dachterrasse
+ Untergeschoss mit ca. 42m² WFL plus Kellerraum ca. 16m²
Flur/Gästezimmer/Bad/Kellerraum/zuzgl. Haustechnik
+ Nutzflächen Außenbereiche: Gartenterrasse ca. 6m²/Gartenbereich ca. 28m²/Dachterrasse ca. 24m²
*Das bedeutet für Sie, mit allen Sinnen gestalten und somit Räume auf vier Etagen zu Ihrem einzigartigen Zuhause zu machen.
Mein neues zu Hause! Welcome Home.
Das Frankfurter Ostend beherbergt seit Mitte des 19. Jahrhunderts hier den zweitgrößten Zoo des Landes. In den boomenden Gründerjahren entstand mit eigenem Hafen, Bahnhof und
Großmarkthalle ein bedeutendes Industriequartier. Ab den 2000er Jahren entwickelte sich die bekannte Hanauer Landstraße zur Lebensader der Frankfurter Kreativ-, Auto- sowie Gastrobranche. Mit der Eröffnung der Zentrale der Europäischen Zentralbank (EZB) in 2015 samt Hafenpark wurde der nunmehr innenstädtische Stadtteil zu einem beliebten Wohnquartier in Frankfurt.
Hier finden Sie wirklich alles das, das Sie für einen komfortablen und modernen Lebensstil wünschen: kurze Wege für die alltäglichen Bedürfnisse wie Einkäufe, Ärzte, Naherholungsgebiete, Freizeit, Kultur und Sport.
Urban! Nah zum Grünen! Nah zum Wasser!
1 Min. zu fuß Zoo
5 Min. zu fuß Haltestelle "Frankfurt Ost": U-Bahn, Straßenbahn, Bus und Regionalbahnen
5 Min. zu fuß Louis-Appia-Passage/Einkaufszentrum
5 Min. per Fahrrad Europäische Zentralbank (EZB)
5 Min. per Fahrrad Mainufer mit Hafenpark
7 Min. per Fahrrad Eissporthalle Frankfurt
8 Min. mit dem Auto Autobahnanschluss Ost A661
8 Min. zu fuß Ostpark
10 Min. zu fuß Anlagenring und Innenstadt
20 Min. mit dem Auto Flughafen Frankfurt
Der Hausverkauf erfolgt im Auftrag des Verkäufers. Die Welhome Immobilienvermittlung & Services ist exklusiv mit der Vermarktung beauftragt.
Dieses Angebot ist für Kaufende PROVISIONSFREI.
Alle Darstellungen, Möbel und Einrichtungen sind nur beispielhaft. Sie dienen ausschließlich als Anregung und Information, sind jedoch weder ein Angebot noch Vertragsgegenstand.
Änderung und Gestaltung bleiben vorbehalten und es gelten ausschließlich die Bestimmungen des Kaufvertrages sowie die notariell beurkundete Baubeschreibung.
Die Angaben im Exposé stammen vom Verkäufer, sie wurden mit der erforderlichen Sorgfaltspflicht erstellt. Wir übernehmen für Ihre Richtigkeit keine Gewährleistung oder Haftung.
Geldwäsche: Als Immobilienmaklerunternehmen sind wir nach § § 1, 2 Abs. 1 Nr. 14, 10, 11 Geldwäschegesetz (GwG) dazu verpflichtet, bei Begründung einer Geschäftsbeziehung die Identität des Vertragspartners festzustellen und zu überprüfen. Hierzu ist es erforderlich, dass wir die relevanten Daten Ihres Personalausweises festhalten, beispielsweise mittels einer Kopie. Bei einer juristischen Person benötigen wir eine Kopie des Handelsregisterauszugs, aus welchem die wirtschaftlich Berechtigten hervorgehen. Das Geldwäschegesetz (GwG) sieht vor, dass der Makler die Kopien bzw. Unterlagen fünf Jahre aufbewahren muss.
Sie haben eine Immobilie zu verkaufen oder zu vermieten? Sie möchten, dass Ihre Immobilie auch professionell und marktgerecht angeboten wird? Gerne! Sprechen Sie direkt mit Herrn Josepovici unter Tel. 069-253434. Rufen Sie an, wir beraten Sie und ermitteln eine aktuelle Marktpreiseinschätzung und verkaufen bzw. vermieten auch Ihre Immobilie erfolgreich!
