Das sehr gepflegte Mehrfamilienhaus liegt in ruhiger, bevorzugter Lage und ist mit einem Aufzug ausgestattet, der die insgesamt sieben Etagenwohnungen bequem erreichen lässt. Auf dem Grundstück befindet sich ein liebevoll gepflegter Garten mit Immergrün-Hecken sowie im Innenhof die abschließbare Einzelgarage.
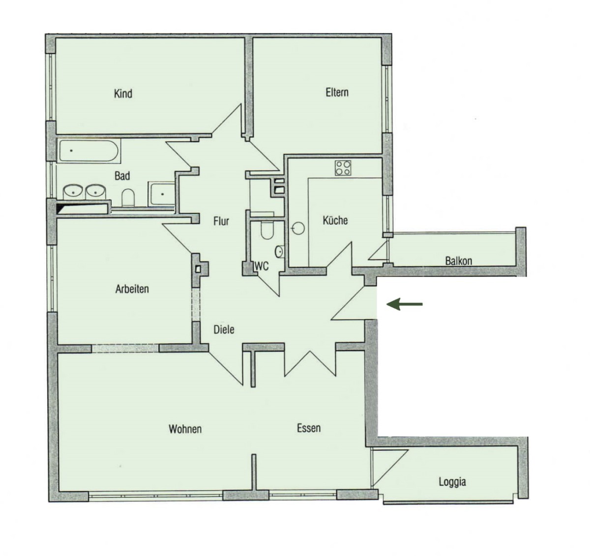
Die im Jahr 2019 neusanierte 5-Zimmerwohnung besticht durch eine modernisierte Ausstattung mit viel Platz, lichtdurchfluteten Räumen, vollausgestattetem Tageslichtbad und einer hochwertigen Einbauküche. Abgerundet wird das Wohngefühl von zwei Balkonen, einem Speicher im Dachboden (Sondernutzungsrecht) und einem Keller sowie einer Einzelgarage im Innenhof (Sondereigentum):
+ Sicherheits-Wohnungsgstür (Widerstandsklasse WK2 nach DIN 1627 ENV)
+ Großzügige Wohnräume mit großen, lichtdurchflutenden Fensterfronten
+ sonniger Südbalkon-Loggia
+ Neuwertige Küche mit Platz für einen Frühstückstisch
+ Hochwertige Einbauküche mit allen Gerätschaften
+ Großer Kühl- und Gefrierschrank, Induktionsherd, Backofen, luxuriöse Granit-Arbeitsplatte sowie beleuchtete Ober- und Unterschränke
+ Zugang zum Küchen-Balkon (Hinterseite)
+ Modernisiertes und vollausgestattetes Tageslichtbad
+ Mit separater Badewanne und Dusche
+ Modernisiertes Gäste WC
+ Doppelglasisolierte Fenster
+ Holzparkettboden in allen Wohnräumen
+ Je nach Bedarf: 2 oder 3 Schlafzimmer
+ Separate Abstellkammer und Waschmaschinen-/Trocknerplatz im Flur
+ Neue Elektroinstallation in der Wohnung (2019)
+ Kabel-TV
+ Abschließbarer Kellerraum und zusätzlicher Speicher im Dachboden (Sondernutzungsrecht)
+ Aufzug
+ Hausmeisterservice
+ Einzelgarage im Innenhof (Sondereigentum, 45.000 EUR)
Mein neues zu Hause! Welcome Home.
Das Wohngeld für Wohnung und Garage beträgt zurzeit monatlich ca. 735 EUR inkl. eingerechnete Rücklagen.
Die Wohnung eignet sich je nach individueller Vorstellung als Kapitalanlage zur Neuvermietung oder für den Eigenbedarf zur Selbstnutzung.
Sie ist bis zum 30. Juni 2026 vermietet.
Senden Sie uns gerne eine Emailanfrage zu - wir beantworten Ihnen diese schnell und zuverlässig und können im Anschluss auf Wunsch einen individuellen Besichtigungstermin vereinbaren.
Das Holzhausenviertel gehört zum Frankfurter Stadtteil Nordend und hat seinen Namen von der Frankfurter Patrizierfamilie Holzhausen. Entstanden ist das Viertel aus dem heute inmitten des Viertels liegenden Holzhausenpark. Dieser wiederum ist der 3,5 Hektar große Rest des ehemaligen Anwesens der Familie und ist heute ein ideales Naherholungsgebiet mit Bistrocafé und Kiosk.
Wer hier wohnt, hat es eigentlich "geschafft": ein Gedicht an bürgerlicher Wohnkultur, viele Bäume und wenig Verkehr, ein großer Park mit Spielwiese und Spielplatz, ruhige aber zentrale Lage inmitten des pittoresken Viertels. Mit der nahegelegenen U-Bahn sind es drei Haltestellen bis zur Zeil, die Uni (Campus Westend) liegt in der Nähe, und sogar auf der Autobahn ist man in wenigen Augenblicken. Dementsprechend gehört das Holzhausenviertel zu den beliebtesten und begehrtesten Wohngegenden Frankfurts.
Der Wohnungsverkauf erfolgt im Auftrag des Verkäufers. Die WELHOME Immobilienvermittlung & Services ist exklusiv mit der Vermarktung beauftragt.
Die Angaben im Exposé stammen vom Verkäufer, sie wurden mit der erforderlichen Sorgfaltspflicht erstellt aber nicht überprüft.
Wir übernehmen daher für Ihre Richtigkeit keine Gewährleistung oder Haftung.
Der guten Ordnung halber bestätigen wir, dass für unsere Tätigkeit im Erfolgsfalle durch eine Nachweis- oder Vermittlungstätigkeit eine kostenpflichtige Maklerprovision jeweils für Käufer und Verkäufer in gleicher Höhe anfällt. Die anteilige Käuferprovision beträgt 3,57% inkl. 19% MwSt. auf den notariell beurkundeten Gesamtkaufpreis und ist bei Abschluss des Kaufvertrages verdient und sofort fällig.
Wir weisen ausdrücklich darauf hin, dass wir auch für den Verkäufer eine provisionspflichtige Nachweis- und oder Vermittlungstätigkeit aufgenommen haben und davon Gebrauch nehmen können, sofern dies nicht zu einer vertragswidrigen Kollision mit den Interessen des Kaufinteressenten führt.
Alle Darstellungen, Möbel und Einrichtungen sind nur beispielhaft. Sie dienen ausschließlich als Anregung und Information, sind jedoch weder ein Angebot noch Vertragsgegenstand.
Geldwäsche: Als Immobilienmaklerunternehmen sind wir nach § § 1, 2 Abs. 1 Nr. 14, 10, 11 Geldwäschegesetz (GwG) dazu verpflichtet, bei Begründung einer Geschäftsbeziehung die Identität des Vertragspartners festzustellen und zu überprüfen. Hierzu ist es erforderlich, dass wir die relevanten Daten Ihres Personalausweises festhalten, beispielsweise mittels einer Kopie. Bei einer juristischen Person benötigen wir eine Kopie des Handelsregisterauszugs, aus welchem die wirtschaftlich Berechtigten hervorgehen. Das Geldwäschegesetz (GwG) sieht vor, dass der Makler die Kopien bzw. Unterlagen fünf Jahre aufbewahren muss.
Sie haben eine Immobilie zu verkaufen oder zu vermieten? Sie möchten, dass Ihre Immobilie auch professionell und marktgerecht angeboten wird? Gerne! Sprechen Sie direkt mit Herrn Josepovici unter Tel. 069-25 34 34. Rufen Sie an, wir beraten Sie und ermitteln eine aktuelle Marktpreiseinschätzung und verkaufen bzw. vermieten auch Ihre Immobilie erfolgreich!
