In mitten des Zoo-Wohnquartiers, geprägt von den vielen Wohnbestandsgebäuden, entstehen auf dem Grundstück hinter einem Vorderhaus, eines ruhigen Hinterhofs, zwei Stadthäuser als Neubau-Doppelhaushälften.
Das Gebäude wird nach den Vorgaben eines Effizienzhauses der Klasse E55 erstellt und zeichnet sich somit durch eine besonders energieeffiziente Bauweise und Gebäudetechnik aus.
Die markante Architektur greift mit dem charakteristischen Erker in der Frontfassade und dem Giebeldach auf Stilelemente klassischer Villenarchitektur zurück, interpretiert diese jedoch eigenständig und modern. Große Fensterflächen, das offen gestaltete Treppenhaus im Zentrum und die Dachschrägen im Obergeschoss schaffen lichtdurchflutete Räume mit individuellem Charakter und hoher Aufenthaltsqualität.
Die Raumaufteilung ist durchdacht und mit ca. 231m² Wohnfläche und sechs Wohnräumen sehr großzügig. Jede der vier nutzbaren Etagen lädt zur Entfaltung seiner individuellen Wohnvorstellung ein.
NACHHALTIGKEIT
+ Effizienzhaus der Klasse E55
+ Zentralheizung über Luft/Wasser/Wärmepumpe
+ Dezentrale Lüftungsanlage mit Wärmerückgewinnung
+ Wärmegedämmte Aluminium Haustür
+ Kunststoff-Fenster mit wärmedämmender 3-fach-Verglasung
+ Wärmegedämmter Dachaufbau nach Energieeinsparverordnung (EnEV 2016)
+ E-Ladestation für PKW
*Das bedeutet für Sie, deutlich weniger Energiekostenrisiko sowie nachhaltiger Wohnraum für die Zukunft.
HOCHWERTIGE AUSSTATTUNG & SICHERHEIT
+ Smart-Home-System-Steuerung für Heizung/Belichtung/Rolläden
+ Elektrische Rolläden mit Fernbedienung und Aufschiebe Sicherung
+ Haustür mit Sicherheitsschloss und Fingerprint-Technologie
+ Komfortables Raumgefühl durch Deckenhöhe von ca. 2,63m
+ Innentüren mit einer Höhe von räumigen 2,26m
+ Attraktive Holzparkett- und Fliesenböden
+ Moderne Fußbodenheizung
+ Tageslichtbäder
+ Badausstattung von namhaften Markenhersteller Laufe und Grohe
+ Große Dachterrasse
+ Terrasse im EG
+ Außenstellplatz direkt am Haus inkl. E-Ladestation für ein PKW (zuzügl. 35.000,00 EUR)
+ Hochwertiger Pflasterbelag im Außenbereich
+ Fahrradstellplätze mit Bodenanker in Edelstahl
*Das bedeutet für Sie, Ihren hochwertigen Ansprüchen gerecht zu werden.
GANZHEITLICHES WOHNRAUMKONZEPT
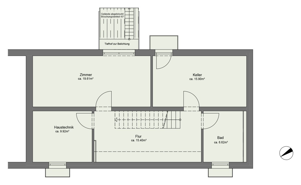
+ Untergeschoss mit ca. 42m² WFL plus Kellerraum ca. 16m²
Flur/Gästezimmer/Bad/Kellerraum
+ Erdgeschoss mit ca. 71m² WFL
Garderobe/Gäste-WC/Flur/HWR/Küche/Wohnen/Essen
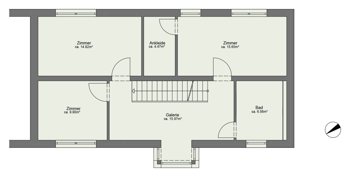
+ Obergeschoss mit ca. 67m² WFL
Galerie/Bad/Schlafen/Ankleide/Kinderzimmer/Home-Office
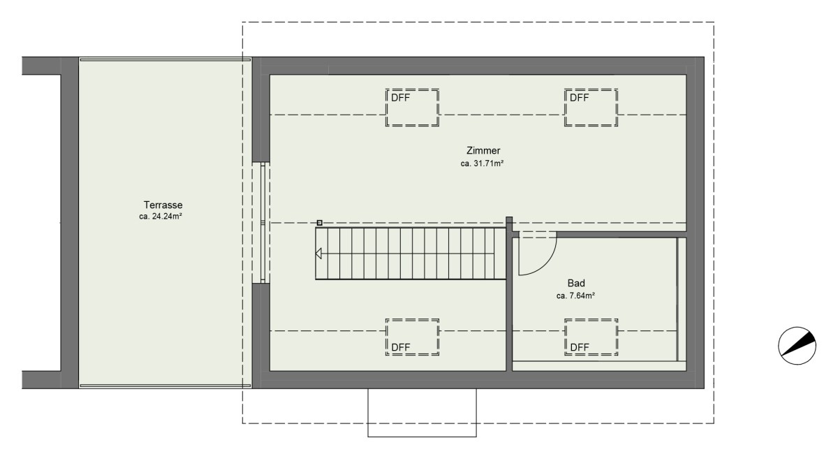
+ Dachgeschoss mit ca. 52m² WFL
Schlafen/Bad/Dachterrasse
+ Nutzflächen Außenbereiche: kleine Gartenterrasse ca. 6m²/ Gartenbereich ca. 28m² / Dachterrasse ca. 24m²
*Dies bedeutet für Sie, mit allen Sinnen gestalten und somit die Räume auf vier Etagen zu Ihrem Zuhause zu machen.
Mein neues zu Hause! Welcome Home.
Das Frankfurter Ostend beherbergt seit Mitte des 19. Jahrhunderts hier den zweitgrößten Zoo des Landes. In den boomenden Gründerjahren entstand mit eigenem Hafen, Bahnhof und
Großmarkthalle ein bedeutendes Industriequartier. Ab den 2000er Jahren entwickelte sich die bekannte Hanauer Landstraße zur Lebensader der Frankfurter Kreativ-, Auto- sowie Gastrobranche. Mit der Eröffnung der Zentrale der Europäischen Zentralbank (EZB) in 2015 samt Hafenpark wurde der nunmehr innenstädtische Stadtteil zu einem beliebten Wohnquartier in Frankfurt.
Hier finden Sie wirklich alles das, das Sie für einen komfortablen und modernen Lebensstil wünschen: kurze Wege für die alltäglichen Bedürfnisse wie Einkäufe, Ärzte, Naherholungsgebiete, Freizeit, Kultur und Sport.
Urban! Nah zum Grünen! Nah zum Wasser!
1 Min. zu fuß Zoo
5 Min. zu fuß Haltestelle "Frankfurt Ost": U-Bahn, Straßenbahn, Bus und Regionalbahnen
5 Min. zu fuß Louis-Appia-Passage/Einkaufszentrum
5 Min. per Fahrrad Mainufer mit Hafenpark
7 Min. per Fahrrad Eissporthalle Frankfurt
8 Min. mit dem Auto Autobahnanschluss Ost A661
8 Min. zu fuß Ostpark
10 Min. zu fuß Anlagenring und Innenstadt
20 Min. mit dem Auto Flughafen Frankfurt
Der Hausverkauf erfolgt im Auftrag des Verkäufers. Die Welhome Immobilienvermittlung & Services ist exklusiv mit der Vermarktung beauftragt.
Alle Darstellungen sind nur beispielhaft. Sie dienen der Information und stellen kein vertragliches Angebot dar. Änderung und Gestaltung bleiben vorbehalten und es gelten ausschließlich die Bestimmungen des Kaufvertrages sowie die notariell beurkundete Baubeschreibung. Dargestellte Möbel sind nicht Vertragsgegenstand.
Die Angaben im Exposé stammen vom Verkäufer, sie wurden mit der erforderlichen Sorgfaltspflicht erstellt aber nicht überprüft. Wir übernehmen daher für Ihre Richtigkeit keine Gewährleistung oder Haftung.
Dieses Angebot ist für Käufer/Käuferin PROVISIONSFREI.
Geldwäsche: Als Immobilienmaklerunternehmen sind wir nach § § 1, 2 Abs. 1 Nr. 10, 4 Abs. 3 Geldwäschegesetz (GwG) dazu verpflichtet, vor Begründung einer Geschäftsbeziehung die Identität des Vertragspartners festzustellen und zu überprüfen. Hierzu ist es erforderlich, dass wir die relevanten Daten Ihres Personalausweises festhalten, beispielsweise mittels einer Kopie. Das Geldwäschegesetz (GwG) sieht vor, dass der Makler die Kopien bzw. Unterlagen fünf Jahre aufbewahren muss.
Sie haben eine Immobilie zu verkaufen oder zu vermieten? Sie möchten, dass Ihre Immobilie auch professionell und marktgerecht angeboten wird? Gerne! Sprechen Sie direkt mit Herrn Josepovici unter Tel. 0171-820 10 80. Rufen Sie an, wir beraten Sie und ermitteln eine aktuelle Marktpreiseinschätzung und verkaufen bzw. vermieten auch Ihre Immobilie erfolgreich!
